El alcalde de Onís, José Manuel Abeledo, ya baraja fechas para ver hecha realidad una de las instalaciones más ansiadas en el concejo, la residencia de mayores, que se construirá anexa al edificio de Servicios Múltiples Hermanos Álvarez Marcos, en Tullidi. «Antes de que termine 2018 tendremos la residencia en marcha», aseguró a EL FIELATO el primer edil oniense.
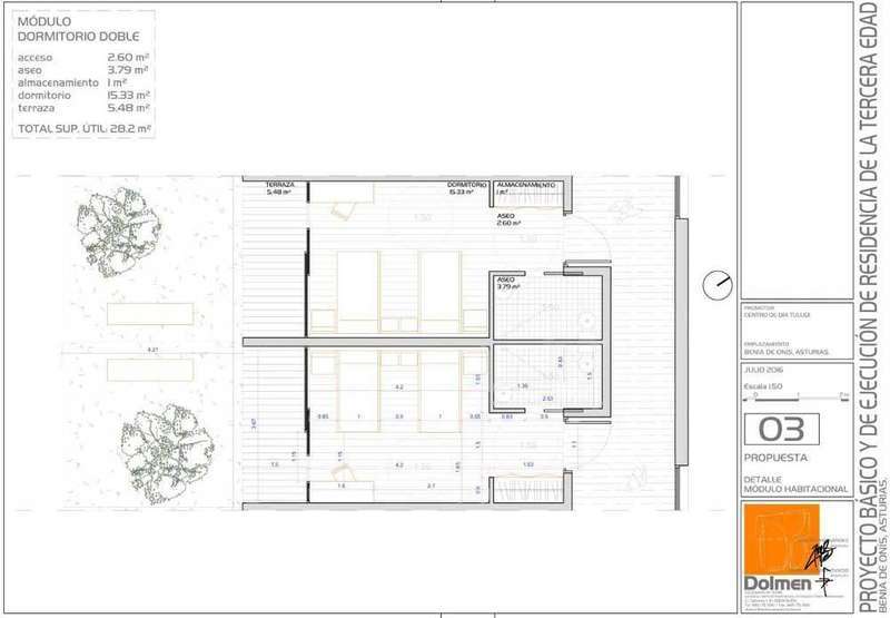
El proyecto, que ya está en el Ayuntamiento, es para unas instalaciones de 24 plazas –12 habitaciondes dobles con terraza– que construiría y gestionaría una entidad privada. «Hablamos de un proyecto público-privado, que iría anexo al centro de usos múltiples de Tullidi y que se gestionaría conjuntamente con el Centro de Día, que ya funciona allí desde hace años», asegura Abeledo.
La nueva Residencia supondrá la creación de alrededor de 10 puestos de trabajo.

El proyecto prevé la construcción de un ala, en una planta, en la parte trasera del Centro Municipal Hermanos Álvarez Marcos, en Tullidi.

Detalle de las habitaciones, 12 dobles, dotadas todas de baño y terraza.